Народные инициативы
Открытое Правительство
Иркутской области
ИАС СЦГ Иркутской области
Слюдянский муниципальный район Иркутской области / Новоснежнинское МО
2014 год

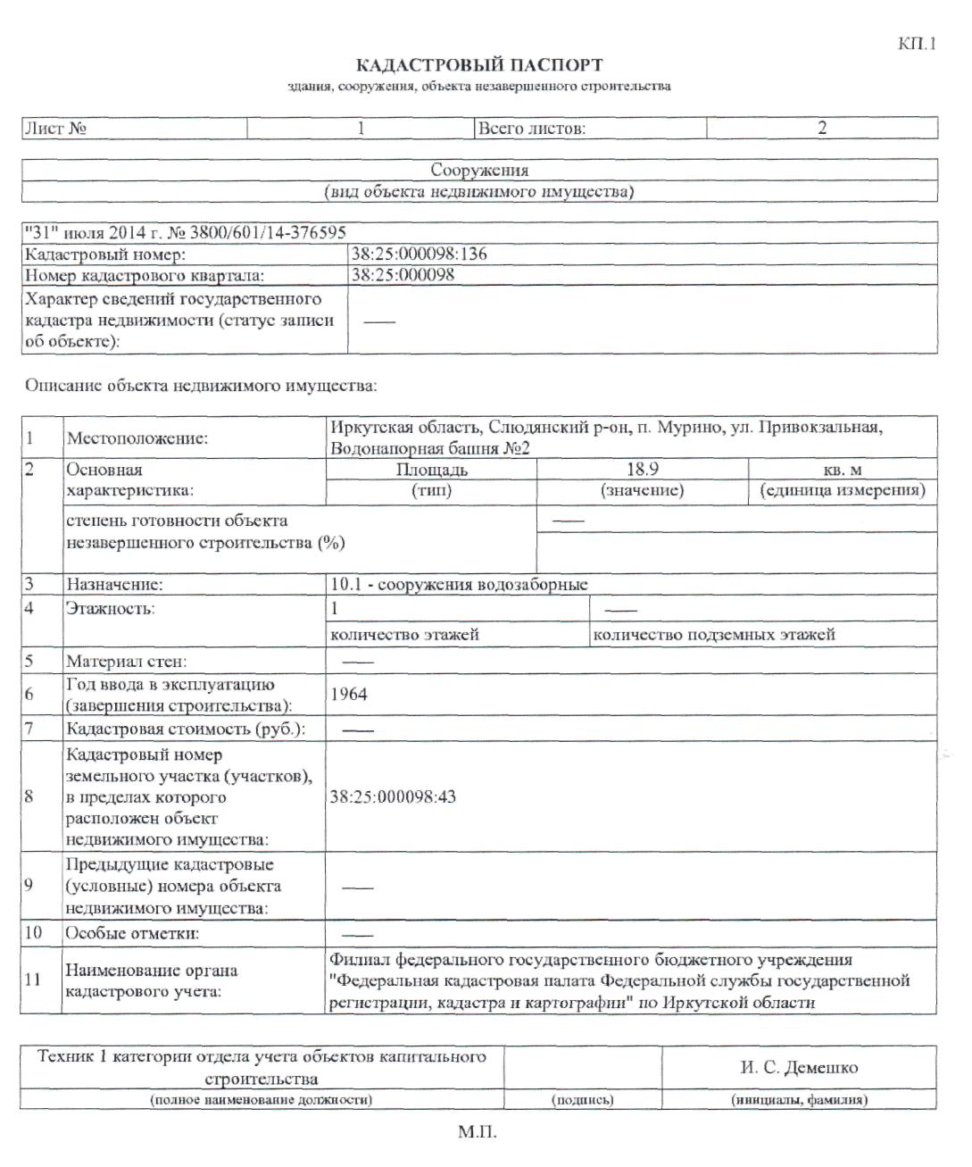
Изготовление технического паспорта на водоразводящие сети в п. Мурино

Объем финансирования (тыс. рублей)
Всего
232
В т.ч. из местного бюджета
2,3
Подрядчик
ООО "Геограндинфо" Иркутский филиал ФГУП "Ростехинвентаризация - Федеральное БТИ"
Фотографии до
Фотографии после
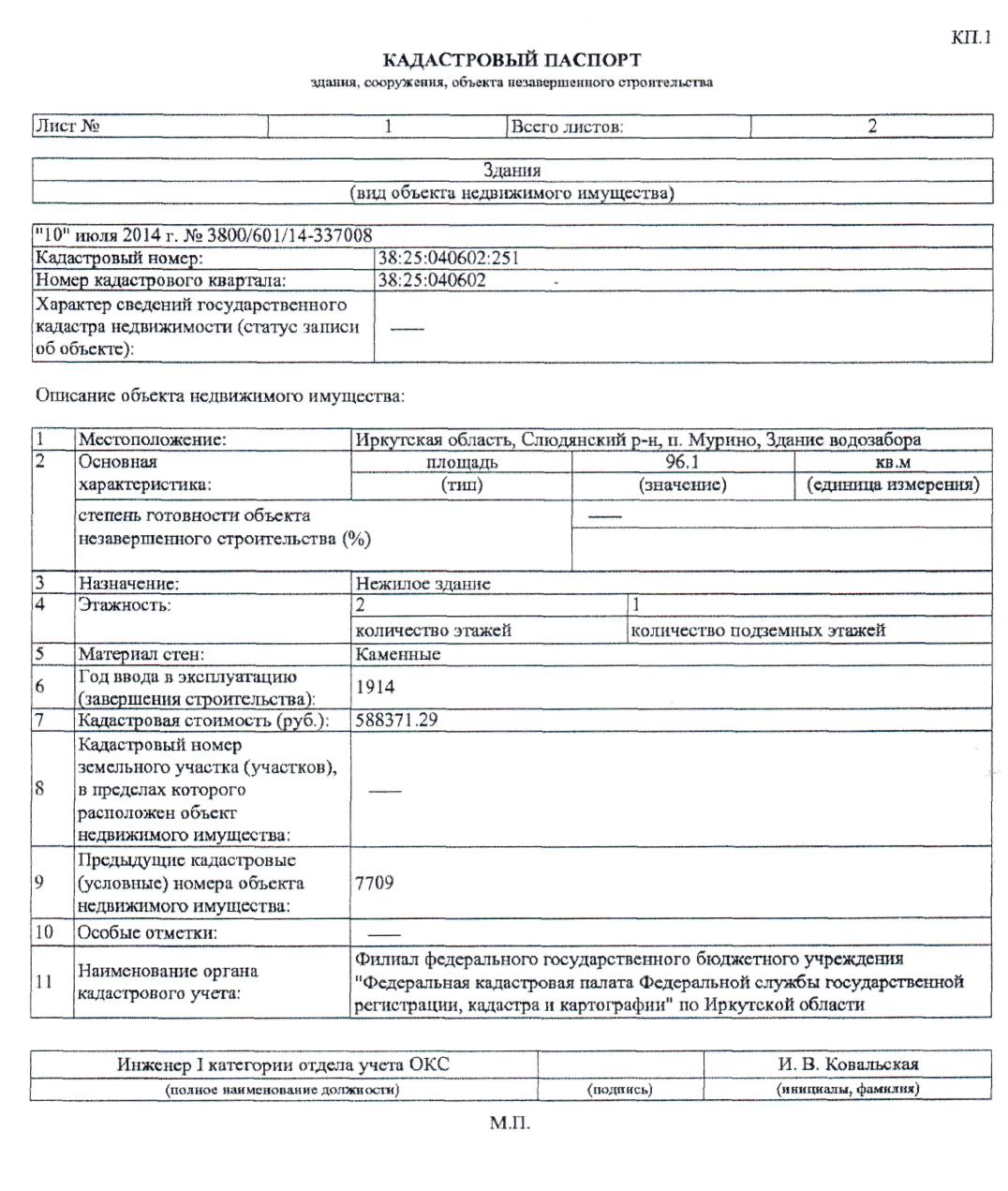
Изготовление технического паспорта на здание водозабора в п. Мурино (#330581)
Срок реализации
12.12.2014
Добавлено
Рубцов Михаил
14.05.2015 11:24:53
Отредактировано
Рубцов Михаил
14.05.2015 11:42:49